
こんにちは。
山口県で平屋を専門に設計施工している、平家工房みともです。
私たちは、「コンパクトで無理のない家づくり」をご提案しています。
しかし、コンパクトと聞くと「狭いのでは?」と感じる方も多いのではないでしょうか。
実際に、完成見学会で20~25坪前後の平屋をご覧いただくと、
「思っていたよりゆとりがあって開放的!」
「コンパクトな家でもこんなに広いんですね!」
といったお声をよくいただきます。
平家工房みともの平屋がコンパクトでも開放的に感じられるのは、「設計の工夫」にあります。
これまで平屋専門で200棟以上手掛けてきた経験を活かし、ご家族が快適で心地よい空間づくりをご提案しています。
今回は、コンパクトな平屋を広く見せる設計のポイントを3つご紹介します!
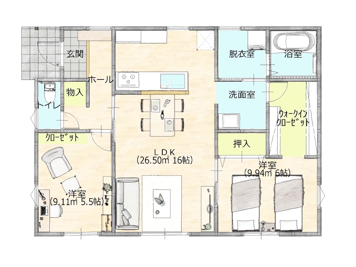
■1:廊下を作らない

コンパクトな平屋では、できるだけムダなスペースをつくらないことが基本です。
特に廊下は、移動のための空間なので、なくても生活に不都合なことはありません。
LDKを中心に各部屋へアクセスできる間取りにすることで、廊下をつくらない、または最小限に抑えることができます。
その分をリビングや居室に充てることで、同じ20坪でも体感的な広さは大きく変わります。
■2:LDKは直線的に配置する

リビング・ダイニング・キッチンを直線で配置することも効果的です。
一直線に並ぶレイアウトは、視線が抜けて空間が広く感じられます。
さらに、掃き出し窓の位置を工夫し、キッチンから外へ視線が抜けるように設計すると、さらに開放感が生まれ、実際の面積以上の広さに感じられます。
■3:回遊動線で行き止まりをつくらない

水まわりやリビング、収納の間取りを回遊動線にするのも、空間を広く見せる工夫のひとつです。
ぐるっと回れる回遊動線は、行き止まりがなく、空間に広がりが生まれます。
行き来のたびに引き返す必要がないため、動線もスムーズに。
暮らしやすさと開放感を同時に叶えられます。
「コンパクトな平屋は狭い」と思われがちですが、設計次第で開放的で居心地の良い住まいを造ることが可能です。
小さくても開放的な平屋を、みなさんもぜひ一度体感してみませんか?
完成見学会で実際の平屋を体験してみると、きっと平屋のイメージが変わるはずです。
お気軽にお問い合わせください♪